Изобретение относится к электротехнике, в частности к регуляторам постоянного напряжения, и может быть использовано в системах вторичного электропитания для регулирования и стабилизации постоянного выходного напряжения.
Известны регуляторы постоянного напряжения, повышающие выходное напряжение по отношению к входному постоянному напряжению [1].
Недостатком известных регуляторов постоянного напряжения, повышающих выходное напряжение по отношению к входному постоянному напряжению, является отсутствие возможности получения выходного напряжения большего по величине, чем напряжения на регулирующем ключе, прямоугольного тока через регулирующий ключ, уменьшения числа витков магнитного элемента и пульсаций выходного напряжения, повышения КПД.
Наиболее близок по технической сущности к предлагаемому устройству повышающий регулятор постоянного напряжения [1].
Цель изобретения - формирование высокого выходного напряжения - больше напряжения на регулирующем ключе, прямоугольного импульса тока через регулирующий ключ, уменьшение числа витков магнитного элемента и пульсаций выходного напряжения, повышение КПД.
Поставленная цель достигается тем, что в устройство введена вторая обмотка в магнитный элемент, началом к аноду дополнительного диода, катод которого подключен к дополнительно введенному конденсатору, второй полюс которого подключен к концу вторичной обмотки, общая точка соединения которых подключена к второму конденсатору, включенному последовательно с дополнительным конденсатором, параллельно которым включена нагрузка, а общая точка соединения конца первичной обмотки магнитного элемента с регулирующим ключом подключена к аноду второго выпрямительного диода, катод которого подключен к общей точке соединения конденсаторов.
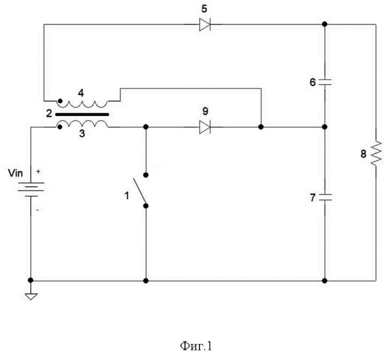
На фиг.1 показана принципиальная электрическая схема предлагаемого регулятора постоянного напряжения повышающего типа.
В нем (фиг.1) силовой регулирующий ключ 1, линейная индуктивность 2, содержащая две обмотки 3,4, первичная обмотка 3 из которых началом подключена к положительному выводу входного источника постоянного напряжения, концом к положительному полюсу регулирующего ключа 1, отрицательный полюс которого подключен к отрицательному выводу входного источника постоянного напряжения, образующему общую шину, а вторичная обмотка 4 началом подключена к аноду первого выпрямительного диода 5, катод которого подключен к первому выводу конденсатора 6, второй вывод которого соединен с концом обмотки 4, общая точка соединения которых соединена с конденсатором 7, второй вывод которого подключен к общей шине, параллельно конденсаторам 6,7 включена нагрузка 8, а общая точка соединения конца первичной обмотки 3 магнитного элемента 2 с регулирующим ключом 1 подключена к аноду диода 9, катод которого подключён к общей точке соединения конденсаторов 6,7.
Принцип действия предлагаемого регулятора постоянного напряжения повышающего типа рассмотрим исходя из предположения идеальности ключевых элементов, установившегося режима работы и непрерывности изменения магнитного потока в сердечниках линейной индуктивности.
Обозначим через D относительную к периоду T длительность включенного состояния ключа 1.
При замкнутом состоянии ключа 1 в течение времени DT одновременно протекают два процесса - накопление магнитной энергии в линейной индуктивности 2 по первичной обмотке 3 от источника входного постоянного напряжения и заряд конденсатора 6 через выпрямительный диод 5 от вторичной обмотки 4 магнитного элемента 2 до напряжения nVIN, где n-отношение витков вторичной обмотки 4 линейной индуктивности 2 к первичной обмотке 3, при этом конденсатор 6 заряжается током IL/D выпрямительного диода 5, где IL - ток нагрузки, в то время как конденсатор 7 разряжается током нагрузки IL.
На этом интервале времени работы равного DT идет процесс одновременного намагничивания магнитного элемента 2 по первичной обмотке 3 от источника входного напряжения VIN и по обмотке 4 от постоянного напряжения на конденсаторе 6, ток намагничивания которой течет навстречу прямому току через выпрямительный диод 5, компенсируя ток намагничивания по первичной обмотке 3, что приводит к прямоугольной форме тока через регулирующий ключ. Компенсация тока намагничивания позволяет существенно уменьшить число витков магнитного элемента.
После выключения регулирующего ключа 1 происходит переполюсовка эдс на всех обмотках магнитного элемента, выключение выпрямительного диода 5 и включение выпрямительного диода 9, находящегося в проводящем состоянии в течение времени (1-D)T, через который конденсатор 7, заряжается до напряжения nVIN/(1-D) током IL/(1-D) выпрямительного диода 9, при этом конденсатор 6 разряжается током нагрузки IL. В течение всего периода T конденсаторы 6,7 заряжаются и разряжаются противофазно, что позволяет существенно уменьшить пульсации выходного напряжения.
В результате описанного процесса на нагрузке устанавливается напряжение, определяемое суммой напряжений на конденсаторах 6,7, равное VIN[1+n(1-D]/(1-D), что значительно выше напряжения на регулирующем ключе равного VIN/(1-D).
При выключении регулирующего ключа, включение выпрямительного диода 5 происходит с некоторой задержкой из-за положительного напряжения на его катоде, что приводит к разнесению фронтов тока и напряжения на регулирующем ключе и уменьшению динамических потерь при включении регулирующего ключа. Аналогичный процесс происходит при выключении регулирующего ключа из-за включения выпрямительного диода 9 с задержкой, вследствие положительного напряжения на его катоде, что приводит к разнесению фронтов тока и напряжения на регулирующем ключе и уменьшению динамических потерь при выключении регулирующего ключа.
Таким образом, в предлагаемом регуляторе постоянного напряжения повышающего типа осуществляется формирование высокого выходного напряжения - больше напряжения на регулирующем ключе, прямоугольного импульса тока через регулирующий ключ, уменьшение числа витков магнитного элемента и пульсаций выходного напряжения, повышение КПД.
1. Поликарпов А.Г., Сергиенко Е.Ф. Однотактные преобразователи в устройствах электропитания РЭА, “Радио и связь”, 1989, стр.6, рис.1.2.
Изобретение относится к электротехнике, в частности к регуляторам постоянного напряжения, и может быть использовано в системах вторичного электропитания для регулирования и стабилизации постоянного выходного напряжения. Цель изобретения - формирование высокого выходного напряжения - больше напряжения на регулирующем ключе, прямоугольного импульса тока через регулирующий ключ, уменьшение числа витков магнитного элемента и пульсаций выходного напряжения, повышение к.п.д. Устройство содержит силовой регулирующий ключ 1, линейную индуктивность 2, содержащую две обмотки 3,4, первичная обмотка 3 из которых началом подключена к положительному выводу входного источника постоянного напряжения, концом к положительному полюсу регулирующего ключа 1, отрицательный полюс которого подключен к отрицательному выводу входного источника постоянного напряжения, образующему общую шину, а вторичная обмотка 4 началом подключена к аноду первого выпрямительного диода 5, катод которого подключен к первому выводу конденсатора 6, второй вывод которого соединен с концом обмотки 4, общая точка соединения которых соединена с конденсатором 7, второй вывод которого подключен к общей шине, параллельно конденсаторам 6,7 включена нагрузка 8, а общая точка соединения конца первичной обмотки 3 магнитного элемента 2 с регулирующим ключом 1 подключена к аноду диода 9, катод которого подключён к общей точке соединения конденсаторов 6,7. 1 ил.
Регулятор постоянного напряжения повышающего типа, содержащий линейную индуктивность, первым полюсом подключенную к положительному выводу входного источника постоянного напряжения, другим полюсом через регулирующий ключ к отрицательному выводу входного источника постоянного напряжения, образующему общую шину, первый выпрямительный диод, подключенный анодом к общей точке соединения линейной индуктивности с регулирующим ключом, а катодом к образующему выходное напряжение выходному конденсатору с параллельно включенной нагрузкой, второй полюс которого подключен к общей шине, отличающийся тем, что в регуляторе постоянного напряжения повышающего типа линейная индуктивность выполнена в виде двухобмоточной линейной индуктивности, первичная обмотка которой началом подключена к положительному выводу входного источника постоянного напряжения, концом к регулирующему ключу, подключенному к общей шине, введенная вторичная обмотка началом подключена к аноду введенного второго выпрямительного диода, катод которого подключен к первому выводу вновь введенного конденсатора, второй вывод которого подключен к выходному конденсатору, образующему с ним последовательное соединение, параллельно которым включена нагрузка, а к общей точке соединения двух конденсаторов подключен конец вторичной обмотки линейной индуктивности.
| Преобразователь постоянного напряжения | 1970 |
|
SU441632A1 |
| Стабилизированный источник питания | 1983 |
|
SU1081629A1 |
| ИСТОЧНИК ВТОРИЧНОГО ЭЛЕКТРОПИТАНИЯ | 2002 |
|
RU2215354C1 |
| Аппарат к гидравлическому компрессору для образования жидких поршней | 1930 |
|
SU21318A1 |
| US 6175219 B1, 16.01.2001 | |||
| EP 227382 B1, 03.06.1992. | |||
Авторы
Даты
2025-02-24—Публикация
2024-08-09—Подача