Изобретение относится к спасательным средствам на воде, а именно к линеметательным устройствам.
Известно устройство для метания спасательного линя (авторское свидетельство N 131238 от 21.01.60, МПК B 63 C 9/26) - прототип. Устройство состоит из реактивного снаряда, к которому с помощью троса присоединяется линь, пистолета для выстреливания снаряда, вышибного патрона для воспламенения заряда снаряда и ящика с линем.
Недостатком такого устройства является низкая надежность эксплуатации вследствие нестабильности полета реактивного снаряда из-за газовой эрозии сопла двигателя, а также незащищенности элементов линеметателя от биокоррозии в условиях тропического климата.
Заявленное изобретение решает задачу повышения надежности эксплуатации линеметателя.
Технический результат состоит в повышении стабильности функционирования линеметателя и достигается тем, что линеметатель состоит из пистолета, патрона, ракеты и ящика с линем, а сопло двигателя ракеты выполнено биметаллическим (например, корпус сопла может выполняться из легкого алюминиевого сплава со стальной вставкой в зоне критического сечения) или из полимерного материала (например, материала прессовочного АГ-4 ГОСТ 20437). Применение таких конструкций сопла позволит повысить точность полета ракеты (вследствие повышения стойкости сопла к газовой эрозии), а также ее устойчивость на траектории (из-за смещения центра тяжести ракеты к ее головной части).
В тех случаях, когда линеметатель применяется в условиях повышенных влажности и температуры, т.е. в условиях тропического климата, ящик с линем содержит прокладки с биоцидной пропиткой. Биоцидный состав добавляется также в краску для покрытия других элементов линеметателя.
Для того чтобы линь можно было использовать многократно, линеметатель может содержать рамку для укладки линя. Она представляет собой пластину, например, из алюминиевого сплава, со складывающейся шарнирной рамкой со штырями. Линь после первичного применения линеметателя укладывается с помощью указанной рамки в ящик и может использоваться неоднократно.
Таким образом, применение ракеты линеметателя с биметаллическим или полимерным соплом делает ее полет более точным и устойчивым, что повышает стабильность функционирования линеметателя в целом.
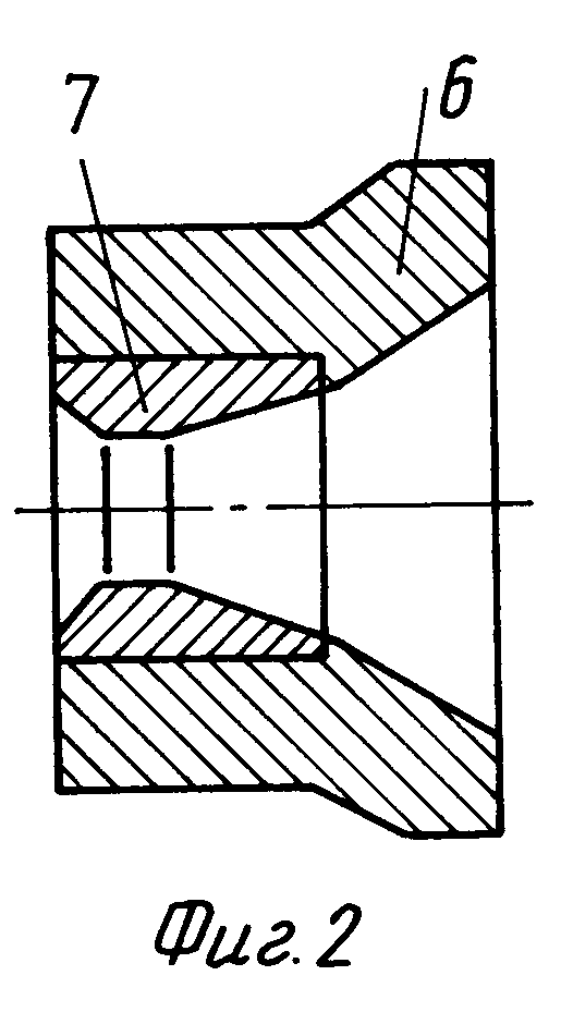
На фиг. 1 изображен линеметатель, на фиг. 2 - сопло ракеты, где 1 - пистолет, 2 - патрон, 3 - ракета, 4 - линь, 5 - ящик с линем, 6 - корпус сопла, 7 - стальная втулка.
Линеметатель состоит из пистолета 1, патрона 2, ракеты 3 с прикрепленным к ней концом линя 4 и ящика 5 с линем. В хвостовую часть ракеты ввернуто сопло 6, выполненное из легкого металла, например алюминиевого сплава, со стальной втулкой 7 в части сопла, наиболее напряженной с точки зрения газовой эрозии, - в зоне критического сечения сопла.
Линеметатель действует следующим образом: в пистолет вставляют патрон и ракету с присоединенным к ней концом линя. Другой конец линя прикрепляют к швартовому или буксирному канату. После чего производят выстрел. Давлением пороховых газов, образующихся от срабатывания патрона, ракета выстреливается из трубы пистолета. Одновременно поджигается заряд двигателя ракеты. Летящая ракета тянет за собой линь. После прекращения горения заряда, ракета падает на землю или воду, при этом ее плавучий наконечник удерживает ракету с линем на поверхности воды. После чего буксирный (швартовый) канат за линь вытягивается на судно (берег). Линь, просушенный и с помощью укладочной рамки помещенный в ящик, готов к повторному применению.
| название | год | авторы | номер документа |
|---|---|---|---|
| АВАРИЙНЫЙ ЛИНЕМЕТАТЕЛЬ | 2000 |
|
RU2174086C1 |
| ЛИНЕМЁТ | 2011 |
|
RU2481231C1 |
| РЕГУЛИРУЕМЫЙ РАКЕТНЫЙ ДВИГАТЕЛЬ | 1997 |
|
RU2135810C1 |
| ИМИТАТОР ВОЗДУШНЫХ ЦЕЛЕЙ | 1997 |
|
RU2123168C1 |
| СПОСОБ ОПРЕДЕЛЕНИЯ МЕСТОПОЛОЖЕНИЯ ДВИЖУЩЕГОСЯ ОБЪЕКТА ПОСЛЕ ЕГО КРУШЕНИЯ В РЕЗУЛЬТАТЕ АВАРИИ | 2015 |
|
RU2587210C1 |
| УНИТАРНЫЙ ПАТРОН | 1995 |
|
RU2086900C1 |
| АРТИЛЛЕРИЙСКИЙ ПАТРОН | 1995 |
|
RU2087837C1 |
| СРЕДСТВО ДИСТАНЦИОННОГО ПОДЖИГАНИЯ ВРЕДНЫХ ГАЗООБРАЗНЫХ ГОРЮЧИХ ВЫБРОСОВ И ПАТРОН МЕТАТЕЛЬНОГО УСТРОЙСТВА СРЕДСТВА ДИСТАНЦИОННОГО ПОДЖИГАНИЯ ВРЕДНЫХ ГАЗООБРАЗНЫХ ГОРЮЧИХ ВЫБРОСОВ | 2006 |
|
RU2317508C1 |
| УЧЕБНО-ТРЕНИРОВОЧНЫЙ СНАРЯД | 1995 |
|
RU2087839C1 |
| РАКЕТА | 1998 |
|
RU2125701C1 |
Изобретение относится к спасательным средствам на воде, а именно к линеметательным устройствам. Технический результат - повышение стабильности функционирования линеметателя. Аварийный линеметатель состоит из пистолета, патрона, ракеты и ящика с линем. Сопло ракеты выполнено биметаллическим, например алюминиевым со стальной вставкой, или из полимерного материала. При использовании в условиях тропического климата ящик с линем содержит прокладки с биоцидной пропиткой. 2 з.п.ф-лы, 2 ил.
| SU, 131238, 21.01.60 | |||
| US, 3886612, 03.06.75 | |||
| FR, 2479128, 02.10.81 | |||
| GB, 1395487, 29.05.75. |
Авторы
Даты
1999-06-20—Публикация
1998-06-25—Подача