Область техники
Изобретение относится к токопроводящим соединениям, структурным связям нескольких взаимно-изолированных электрических соединительных элементов, специально приспособленных для печатных плат. Может быть использовано в тонкопленочной микроэлектронике.
Предшествующий уровень техники
Известно устройство, описанное в патенте РФ на изобретение RU 2231237 С2, «Способ изготовления контактной площадки тонкопленочной микросхемы», МПК H05K 1/02; заявка №2002116274/09, приоритет 17.06.2002, опубликовано 20.06.2004; патентообладатель: Федеральное государственное унитарное предприятие ʺНаучно-исследовательский институт электронно-механических приборовʺ (RU), авторы: Лугин А.Н. (RU), Власов Г.С.(RU), Лугина В.В. (RU).
Контактную площадку создают из алюминия с подслоем металла и защитным слоем. В качестве защитного слоя используют окисел тантала. Выводы микросхемы приваривают к контактной площадке после формирования защитного слоя непосредственно через его поверхность способом ультразвуковой сварки.
Недостатком данного способа является то, что необходимо использование сложного и трудоемкого процесса нанесения защитного слоя из оксида тантала с последующим длительным не менее 6 часов при температуре не ниже 350°С его полного окислением.
В качестве прототипа было выбрано устройство, описанное в патенте РФ на изобретение RU 2494508 С2 «Узел соединителя и электрических дорожек», МПК: H01R 12/00, заявка №2010144076/07, приоритет 28.03.2008 GB 0805674.9, опубликовано 27.09.2013, патентообладатель БЕРУ Ф1 СИСТЕМЗ ЛИМИТЕД (GB), автор: Бейли Джон (GB).
Соединитель выполнен с возможностью соединения методом пайки с участком печатной платы, имеющей множество медных электрических дорожек, в котором участок печатной платы расположен между первым слоем пластичного термореактивного композитного материала, содержащего волокна и наполнитель, и вторым слоем пластичного термореактивного композитного материала, содержащего волокна и наполнитель.
Признаками в прототипе, совпадающими с существенными признаками заявляемого изобретения, являются: использование гибкой печатной платы; для обездвиживания и позиционирования контактных элементов платы используется пластина из непроводящего материала; соединитель монтируется непосредственно на печатную плату.
К недостаткам этой конструкции можно отнести следующее: наличие слоев пластичного термореактивного композитного материала и необходимость обработки готового узла плата-соединитель для отверждения слоев термореактивного композитного материала; применяемые материалы и технологии не позволяют использовать прототип в условиях жесткого рентгеновского излучения.
Раскрытие изобретения
Задачей, на решение которой направлено заявляемое изобретение, состоит в сохранении надежной работоспособности соединителя и передаче стабильного электрического сигнала при комплексном воздействии жесткого рентгеновского излучения и внешних механических воздействиях.
Технический результат, достигаемый при решении этой задачи, заключается в получении устойчивой к жесткому рентгеновскому излучению гальванической пары материалов для передачи электрического сигнала от алюминиевых токопроводников гибкой печатной платы через соединитель на аппаратуру.
Указанный технический результат достигается тем, что, предлагаемый соединитель, интегрированный в гибкую плату, содержащий электрические контакты, выполнен с возможностью соединения своим первым концом с другим соединителем, и неразъемного соединения вторым концом с участком печатной платы с множеством электрических дорожек. Согласно изобретению, токопроводники дорожек гибкой печатной платы выполнены из алюминия. Штыревые контакты установлены внутри втулок, соединены друг с другом с натягом и неразъемно закреплены сваркой, образуя гальваническую пару. Гальваническая пара неразъемно закреплена в нижней колодке с зафиксированной на ней с верхней колодкой. Контактные площадки токопроводников неразъемно соединены с втулками сваркой.
Это позволяет получить технический результат - получение устойчивой к жесткому рентгеновскому излучению гальванической пары материалов для передачи электрического сигнала от алюминиевых токопроводников гибкой печатной платы через соединитель на аппаратуру, который позволяет решить задачу сохранения надежной работоспособности соединителя и передаче стабильного электрического сигнала при комплексном воздействии жесткого рентгеновского излучения и внешних механических воздействиях.
Краткое описание фигур и чертежей
Предлагаемый соединитель иллюстрируется чертежами:
На фиг. 1 показан общий вид соединителя.
На фиг. 2 показан соединитель в изометрии в разрезе.
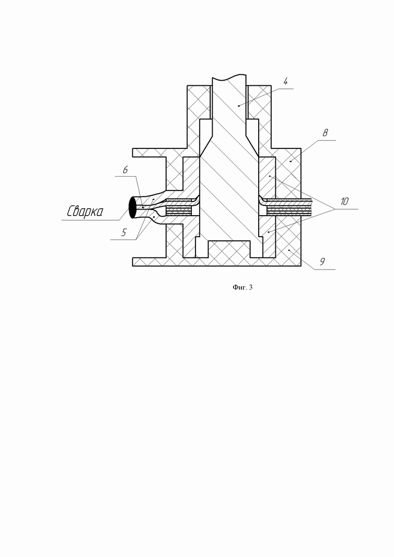
На фиг. 3 показан соединитель вид сбоку в сечении.
На чертежах фиг. 1-3 принимаются следующие обозначения:
1 вилка;
2 - розетка;
3 - гибкая печатная плата;
4 - электрические штыревые контакты;
5 контактный выступ втулки;
6 контактные площадки;
7 - электрические дорожки токопроводников;
8 верхняя колодка;
9 нижняя колодка;
10 втулки из алюминия.
Варианты осуществления изобретения
Как показано на фиг.1, вилка 1 неразъемно интегрирована в гибкую печатную плату 3 с возможностью соединения с ответной частью - розеткой 2.
На фиг. 2 показана вилка 1 с электрическими штыревыми контактами 4, интегрированная в гибкую печатную плату 3.
Контактный выступ втулки 5 вилки 1 соединен с контактными площадками 6, являющимися продолжением электрических дорожек токопроводников 7.
Электрические дорожки токопроводников 7 гибкой печатной платы 3 выполнены из алюминия.
Верхняя колодка 8 и нижняя колодка 9 выполнены из жесткого электроизоляционного пресс-материала, инертного к жесткому рентгеновскому излучению. Это могут быть пресс-материалы АГ-4 В или ДСВ-2-0.
Колодки 8 и 9 создают жесткую конструкцию, которая обеспечивает точное позиционирование штыревых контактов 4, контактных площадок 6 и втулок 10 относительно друг друга.
Верхняя колодка 8 сверху неразъемно установлена на печатную плату 3 и через штыревые контакты 4 соединена с нижней колодкой 9 неразъемно установленной на печатную плату 3 снизу. В каждой верхней 8 и нижней 9 колодках неразъемно установлены втулки 10 из алюминия. Штыревые контакты 4 могут быть выполнены из бронзы, латуни или нержавеющей стали.
Штыревые контакты 4 установлены внутри втулок 10, соединены друг с другом с натягом и неразъемно закреплены сваркой, образуя гальваническую пару. Таким образом, штыревые контакты 4 неразъемно соединены с втулками 10.
Соединение штыревых контактов 4 и втулок 10 создает гальваническую пару. Неразъемная конструкция крепления штыревых контактов 4 внутри втулок 10 внутри неподвижного электроизоляционного пресс-материала верхней 8 и нижней 9 колодок создает гальваническую пару разнородных материалов устойчивую к жесткому рентгеновскому излучению.
В гибкой печатной плате 3 содержащей токопроводники 7 из алюминия организованы свободные контактные площадки 6 расположение которых совпадает с расположением втулок 10 из алюминия. Соединение свободных контактных площадок 6 с контактными выступами втулок 5 вилки 1 выполнено неразъемно методом лазерной сварки алюминия.
При воздействии на соединитель жесткого рентгеновского излучения происходит поверхностный нагрев штыревых контактов 4. При нагреве штыревые контакты 4 расширяются. Нахождение контактов 4 внутри алюминиевых втулок 10, которые не нагреваются под воздействием рентгеновского излучения, позволяет сохранить контакт между контактами 4 и втулками 10. Расположение штыревых контактов 4 и втулок 10 внутри замкнутого объема верхней 8 и нижней 9 колодок позволяет нивелировать воздействие жесткого рентгеновского излучения на штыревые контакты 4, выраженное в расширении и разбрызгивании материала контактов 4 при нагреве. Используемые в соединителе пресс-материал колодок 8 и 9 и алюминий втулки 10 абсолютно инертные для жесткого рентгеновского излучения, а значит, не нагреваются и не разрушаются.
По сравнению с прототипом, в котором используются материалы, сильно нагревающиеся в процессе воздействия жесткого рентгеновского излучения, и не имеющие от него защиту, возможно замыкание соседних контактов, разрушение паяного соединения штырь-плата или обрыв электрических дорожек платы. В заявляемом техническом решении электрические дорожки токопроводников 7 и втулки 10 выполнены из алюминия, а позиционирующие элементы соединителя (колодки 8 и 9,) из пресс-материала, инертного к жесткому рентгеновскому излучению.
Штыревые контакты 4 подвергаемые нагреву при воздействии жесткого рентгеновского излучения установлены внутри алюминиевых втулок 10, образуя гальваническую пару, которая неразъемно закреплена внутри объема, образованного соединением колодок 8 и 9, контактные площадки 6 токопроводников 7 неразъемно соединены с контактными выступами 5 втулок 10 сваркой, как показано на фиг.3.
Поэтому при воздействии жесткого рентгеновского излучения гальваническая пара материалов сохраняет работоспособность, и передает электрический сигнал от алюминиевых токопроводников 7 гибкой печатной платы 3 через вилку 1 и розетку 2 соединителя далее на аппаратуру.
Для такого исполнения конструкции важным фактором при применении гибкой платы 3 является отказ от распайки внутриблочных коммуникаций за счет создании беспроводного монтажа и обеспечение простоты сочленения ответных частей.
Заявляемый соединитель, интегрированный в гибкую печатную плату по сравнению с прототипом позволяет обеспечить создание беспроводного монтажа соединителя на гибкой печатной плате 3 с токопроводниками 7 из алюминия, где штыревые контакты 4 точно спозиционированы относительно розетки 2 и жестко зафиксированы на печатной плате 3. Это лучше противодействует внешним механическим силам и напряжениям/растяжениям при сохранении качества электрического сигнала от токопроводников 7 через гальваническую пару к аппаратуре, Таким образом, решают задачу обеспечения надежной работоспособности соединителя при механическом воздействии и при жестком рентгеновском излучении.
Промышленная применимость
Можно использовать изобретение для соединения алюминиевых проводников гибкой печатной платы и управляющей аппаратуры при использовании разнородных материалов. Рассмотренный вариант выполнения изобретения был реализован на существующем в настоящее время оборудовании с использованием имеющихся материалов. Это подтвердило его работоспособность, получение технического результата и промышленную применимость.
| название | год | авторы | номер документа |
|---|---|---|---|
| Электрический соединитель и способ изготовления проволочных контактов электрического соединителя | 1980 |
|
SU951501A1 |
| Многоконтактный электрический соединитель | 1989 |
|
SU1720113A1 |
| БЛОК СОЕДИНИТЕЛЬНЫЙ | 2002 |
|
RU2227351C2 |
| ГЕРМЕТИЧНЫЙ ТЕПЛОСТОЙКИЙ ЭЛЕКТРИЧЕСКИЙ СОЕДИНИТЕЛЬ | 2002 |
|
RU2231878C2 |
| СОЕДИНИТЕЛЬНОЕ УСТРОЙСТВО | 2013 |
|
RU2529423C2 |
| СПОСОБ СБОРКИ ЭЛЕКТРИЧЕСКОГО СОЕДИНИТЕЛЯ ДЛЯ МНОГОСЛОЙНЫХ ПЕЧАТНЫХ ПЛАТ И ЭЛЕКТРИЧЕСКИЙ СОЕДИНИТЕЛЬ ДЛЯ МНОГОСЛОЙНЫХ ПЕЧАТНЫХ ПЛАТ | 1986 |
|
RU2022495C1 |
| Электрический соединитель | 2023 |
|
RU2824446C1 |
| ЭЛЕКТРИЧЕСКИЙ СОЕДИНИТЕЛЬ | 2006 |
|
RU2333581C2 |
| Электрический соединитель | 1980 |
|
SU936115A1 |
| ЭЛЕКТРИЧЕСКИЙ СОЕДИНИТЕЛЬ | 1997 |
|
RU2120165C1 |
Изобретение относится к токопроводящим соединениям, структурным связям нескольких взаимно-изолированных электрических соединительных элементов, специально приспособленных для печатных плат. Технический результат заключается в получении устойчивой к жесткому рентгеновскому излучению гальванической пары материалов для передачи электрического сигнала от алюминиевых токопроводников гибкой печатной платы через соединитель на аппаратуру. Соединитель представляет собой вилку с электрическими штыревыми контактами, неразъемно интегрированную в гибкую печатную плату с возможностью соединения с ответной частью - розеткой. Контактный выступ втулки соединен с контактными площадками платы. Токопроводники дорожек и контактные площадки платы, втулки с контактными выступами выполнены из алюминия. Штыревые контакты выполнены из бронзы, или латуни, или нержавеющей стали. Соединение штыревых контактов и втулок создает гальваническую пару, которая неразъемно закреплена в нижней и верхней колодке, контактные площадки токопроводников неразъемно соединены с втулками сваркой. 3 ил.
Соединитель, интегрированный в гибкую печатную плату, содержащий штыревые электрические контакты, выполнен с возможностью соединения своим первым концом с другим соединителем и неразъёмного соединения вторым концом с участком печатной платы с множеством электрических дорожек, отличающийся тем, что токопроводники дорожек и контактных площадок гибкой печатной платы, втулки с контактными выступами выполнены из алюминия, верхняя и нижняя колодки выполнены из пресс-материала, инертного к жёсткому рентгеновскому излучению, штыревые контакты установлены внутри втулок, соединены друг с другом с натягом и неразъемно закреплены сваркой, образуя гальваническую пару, которая неразъёмно закреплена в нижней и верхней колодке, контактные площадки токопроводников неразъёмно соединены с втулками сваркой.
| УЗЕЛ СОЕДИНИТЕЛЯ И ЭЛЕКТРИЧЕСКИХ ДОРОЖЕК | 2009 |
|
RU2494508C2 |
| СПОСОБ ИЗГОТОВЛЕНИЯ КОНТАКТНОЙ ПЛОЩАДКИ ТОНКОПЛЕНОЧНОЙ МИКРОСХЕМЫ | 2002 |
|
RU2231237C2 |
| Способ передвижения | 2019 |
|
RU2719045C1 |
| ТЕРМОСТАБИЛЬНАЯ ТОНКОПЛЕНОЧНАЯ МИКРОСХЕМА | 1996 |
|
RU2129741C1 |
| УСТРОЙСТВО СОЕДИНЕНИЯ СХЕМЫ ИЛИ РАДИОЧАСТОТНОГО КОМПОНЕНТА, НАПЕЧАТАННЫХ НА МЯГКОЙ ПОДЛОЖКЕ, С КОАКСИАЛЬНЫМ ПРОВОДОМ | 2015 |
|
RU2653589C1 |
| Соединитель для многослойных печатных плат | 1982 |
|
SU1045417A1 |
Авторы
Даты
2025-04-30—Публикация
2024-10-22—Подача